Oferta

Zestawienie oferowanych jednostek mieszkaniowych

Lokal Cena Metraż Status
A 1.799.000,00 zł 173,64 m² zarezerwowany
B 1.272.600,00 zł 106,05 m² sprzedany
C 1.335.960,00 zł 111,33 m² sprzedany
D 1.471.800,00 zł 133,80 m² wolny

Lokal A

Lokal A — Podsumowanie

Nazwa Wartość
Całkowita powierzchnia użytkowa* 173,63 m²
*w tym pow. kl. schodowych 11,59 m²
Ogródek 141,85 m²
Garaż 17,67 m²
Cena za m² 10.360,52 zł

Lokal A — Parter

Lp. Pomieszczenie Metraż
1 Pokój z aneksem kuch. + przedpokój 34,14 m²
2 Toaleta 1,44 m²
3 Garaż 17,67 m²
4 Klatka schodowa 3,00 m²
Razem 53,74 m²
Lokal A, rzut parteru

Lokal A — I piętro

Lp. Pomieszczenie Metraż
5 Przedpokój 6,63 m²
6 Łazienka 5,91 m²
7 Pokój 16,35 m²
8 Pokój 12,58 m²
9 Pokój 10,72 m²
10 Klatka schodowa 4,36 m²
Razem 52,19 m²
Lokal A, rzut I piętra

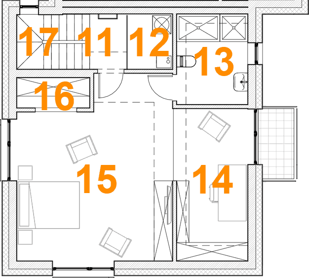
Lokal A — II piętro

Lp. Pomieszczenie Metraż
11 Przedpokój 2,17 m²
12 Pomieszczenie techniczne 2,65 m²
13 Łazienka 6,80 m²
14 Gabinet 11,66 m²
15 Pokój 27,97 m²
16 Garderoba 2,32 m²
17 Klatka schodowa 4,23 m²
Razem 56,11 m²
Lokal A, rzut II piętra

Lokal B

Lokal B — Podsumowanie

Nazwa Wartość
Całkowita powierzchnia użytkowa* 106,05 m²
*w tym pow. kl. schodowych 11,57 m²
Ogródek 125,18 m²
Miejsce postojowe 21,60 m²
Cena za m² 12.000,00 zł

Lokal B — Parter

Lp. Pomieszczenie Metraż
01 Wiatrołap 3,40 m²
1 Pokój z aneksem kuch. + przedpokój 27,39
2 Toaleta 1,44 m²
3 Klatka schodowa 3,00 m²
Razem 32,70 m²
Lokal B, rzut parteru

Lokal B — I piętro

Lp. Pomieszczenie Metraż
4 Przedpokój 3,85 m²
5 Łazienka 4,71 m²
6 Pokój 11,78 m²
7 Pokój 10,50 m²
8 Klatka schodowa 4,20 m²
Razem 30,85 m²
Lokal B, rzut I piętra

Lokal B — II piętro

Lp. Pomieszczenie Metraż
9 Przedpokój 1,96 m²
10 Pomieszczenie techniczne 2,61 m²
11 Łazienka 4,07 m²
12 Pokój 15,26 m²
13 Gabinet 7,02 m²
14 Klatka schodowa 4,37 m²
Razem 30,93 m²
Lokal B, rzut II piętra

Lokal C

Lokal C — Podsumowanie

Nazwa Wartość
Całkowita powierzchnia użytkowa* 111,33 m²
*w tym pow. kl. schodowych 11,12 m²
Ogródek 123,87 m²
Miejsce postojowe 21,60 m²
Cena za m² 12.000,00 zł

Lokal C — Parter

Lp. Pomieszczenie Metraż
1 Pokój z aneksem kuch. + przedpokój 33,36 m²
2 Łazienka 1,36 m²
3 Klatka schodowa 2,88 m²
Razem 35,07 m²
Lokal C, rzut parteru

Lokal C — I piętro

Lp. Pomieszczenie Metraż
4 Przedpokój 3,26 m²
5 Łazienka 3,83 m²
6 Pokój 12,57 m²
7 Pokój 12,76 m²
8 Klatka schodowa 4,23 m²
Razem 32,42 m²
Lokal C, rzut I piętra

Lokal C — II piętro

Lp. Pomieszczenie Metraż
9 Przedpokój 2,01 m²
10 Pomieszczenie techniczne 2,56 m²
11 Łazienka 5,19 m²
12 Pokój 15,09 m²
13 Gabinet 7,87 m²
14 Klatka schodowa 4,01 m²
Razem 32,72 m²
Lokal C, rzut II piętra

Lokal D

Lokal D — Podsumowanie

Nazwa Wartość
Całkowita powierzchnia użytkowa* 133,80 m²
*w tym pow. kl. schodowych 11,08 m²
Ogródek 133,50 m²
Miejsce postojowe 21,60 m²
Cena za m² 11.000,00 zł

Lokal D — Parter

Lp. Pomieszczenie Metraż
01 Wiatrołap 3,37 m²
1 Pokój z aneksem kuch. + korytarz 37,44 m²
2 Toaleta 1,36 m²
3 Klatka schodowa 2,88 m²
Razem 42,53 m²
Lokal D, rzut parteru

Lokal D — I piętro

Lp. Pomieszczenie Metraż
4 Przedpokój 5,81 m²
5 Łazienka 4,15 m²
6 Pokój 7,82 m²
7 Pokój 10,34 m²
8 Pokój 11,47 m²
9 Klatka schodowa 4,20 m²
Razem 39,59 m²
Lokal D, rzut I piętra

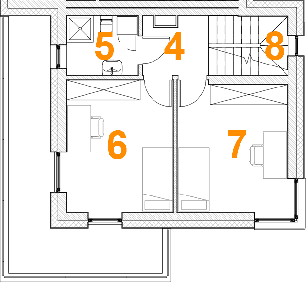
Lokal D — II piętro

Lp. Pomieszczenie Metraż
10 Przedpokój 1,93 m²
11 Pomieszczenie techniczne 2,58 m²
12 Łazienka 5,64 m²
13 Gabinet 9,22 m²
14 Pokój 18,72 m²
15 Garderoba 2,53 m²
16 Klatka schodowa 4,00 m²
Razem 40,60 m²
Lokal D, rzut II piętra

Wille Panorama © 2025 DAMAR HOME sp. z o.o.. Wszelkie prawa zastrzeżone. Projekt i wykonanie — F.H.U. „MACZEX”. Wykorzystano zestaw ikon autorstwa FatCow™ Web Hosting, według zasad licencji Creative Commons Attribution 3.0 US. Informacje zamieszczone na tej stronie internetowej są ogłoszeniami i materiałami reklamowymi, które nie stanowią oferty handlowej w rozumieniu art. 71 Kodeksu cywilnego.